architecture as sense transmitter
Pavilion for Victims of Paris Terrorist Attack
International Competition, ART OF PEACE, Third Price
Partner: Weizhe Gao
2016
![]()
Partner: Weizhe Gao
2016




Site Plan
![]()
Dual Route
![]()
Plan
![]()
![]()
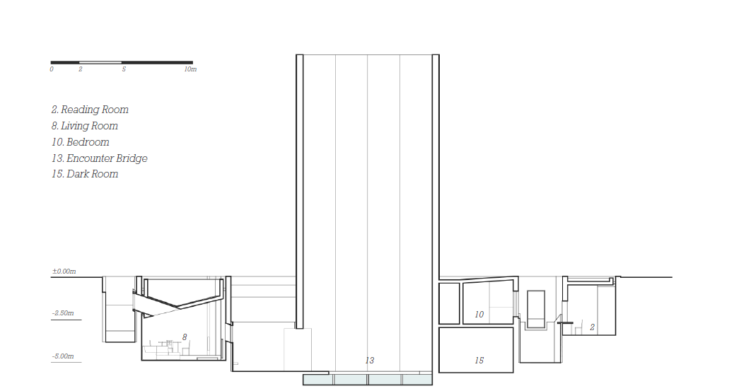
Section
![]()

Dual Route

Plan


Section





All Rights Reserved