maison sédimentation
Nominated for the 2020 James Templeton Kelley Prize
Winner of A+Awards (2023)
Winner of the Architecture MasterPrize (2023)










Built around 1770 onto the foundations of a
much older building that was built in 1692, with a characteristic sloped roof
meant to discourage snow buildup and raised end walls that serve as firebreaks,
the original building is constructed of Montréal graystone. A local art
foundation now owns this building and plans to convert it into a contemporary
gallery that can function as a cultural center and exhibition space, showcasing
a variety of art and cultural events.
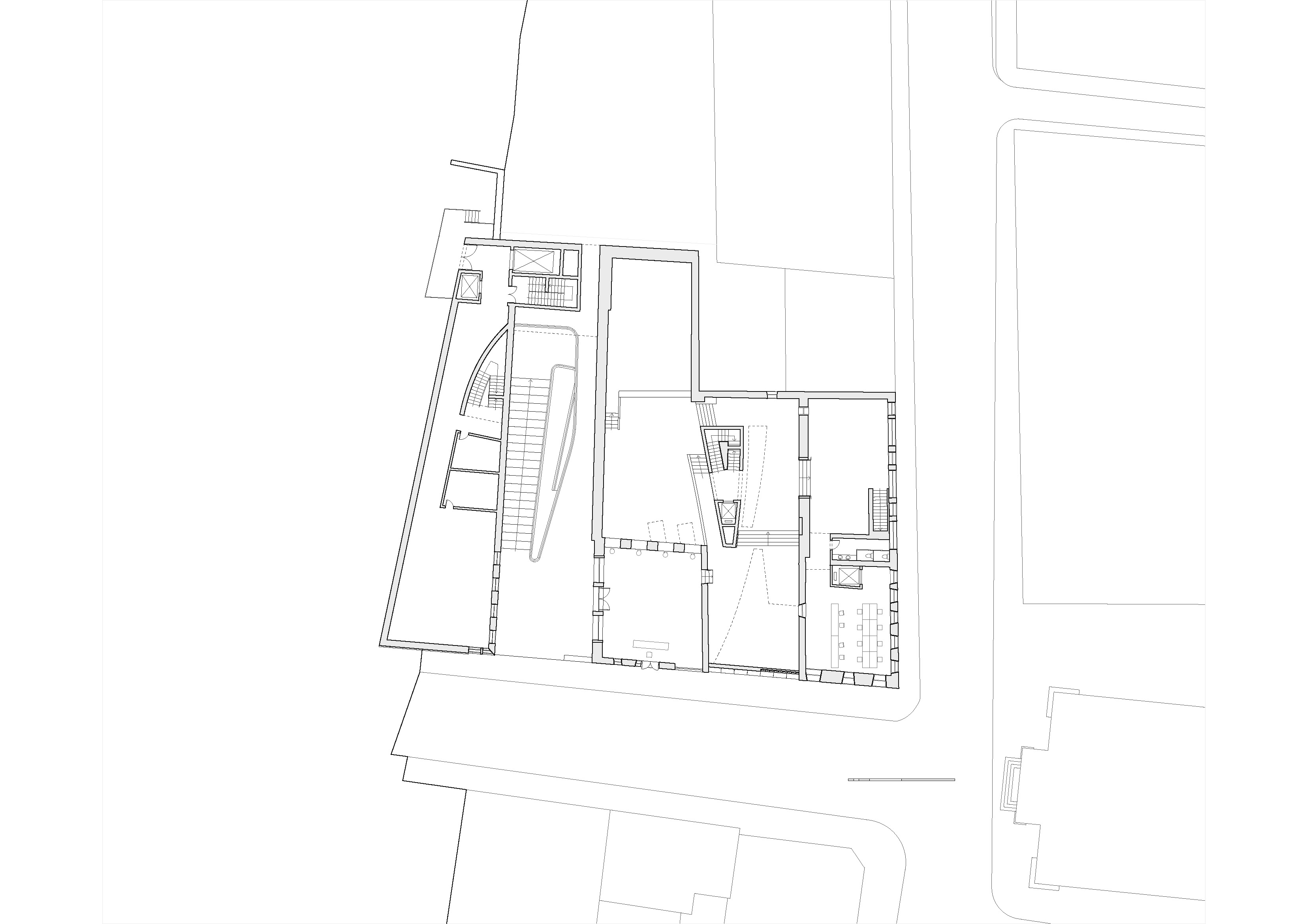
Just like the old city of Montreal, the
original building could be categorized as a sedimentary entity, which is
saturated with layer upon layer of construction, demolition, and partial
recycling of physical boundaries and foundations. The rich history has resulted
in complex circulations and varying elevations in this building. Thurs deciding
on a strategy of intervention requires an honest assessment of possibility. It
is impossible to meet the basic needs of an exhibition space while completely
preserving and restoring the current remain. While only preserving the exterior
facade and rebuilding everything within it will end up nothing more than a
duplicity mask.
The project is looking for is a
palimpsest of physical building layers that can accommodate the program of a
contemporary art museum while preserving the authenticity of the original. The
existing building sets the keynote with its materiality and spatial
organization. The topography and slat-like organization of spaces were
considered as the specificity of the old building and were preserved. The
objective is to construct a gradience of temporality through three different but
complementary approaches: integrated restoration, restoration with an explicit
presence of the new, and new construction. Rather than simply adding spaces to
accommodate contemporary art, the project is trying to curate sensory
experiences.
Through Incremental restoration, this
project dissolves the binary opposition between new and old. One will
experience a transition from somber and ambiguous spaces to a neutral
background; a transition from classical decoration to defamiliarized texture; a
transition from spaces with the vestige of the past to a space that elevates
reality.









All Rights Reserved